Разъединитель РВЗ-10/1600 II УХЛ2
Описание
Трехполюсный разъединитель РВЗ-10/1600 II УХЛ2 внутренней установки с одним заземляющим ножом для использования в электросетях переменного тока с частотой 50-60 Гц, на номинальное напряжение 10 кВ
Разъединители РВЗ-10/1600 II УХЛ2 выполняют следующие функции:
- замыкание / размыкание участков электрической цепи при отсутствии нагрузочного тока либо для трансформации схемы соединения;
- создание видимого разрыва цепи для безопасного ведения работ на изолированном участке;
- подключение и отключение зарядных токов воздушных и кабельных линий, холостого тока трансформаторов и токов слабых нагрузок.
Технические характеристики разъединителя РВЗ-10/1600 II УХЛ2
| Наименование параметра | Значение параметра |
| Номинальное напряжение | 10 кВ |
| Наибольшее рабочее напряжение | 12 кВ |
| Номинальный ток | 1600А |
| Номинальный ток термической стойкости | 31,5 кА |
| Номинальная частота тока | 50/60 Гц |
| Масса разъединителя | 35 кг |
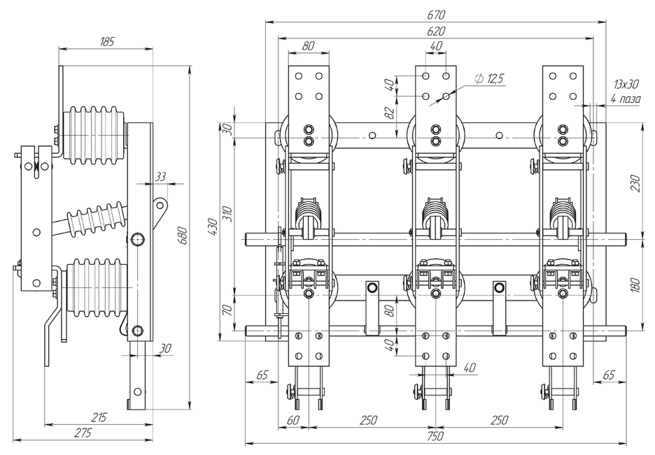
Габаритные размеры, чертеж разъединителя РВЗ-10/1600 II УХЛ2


